Search

Leave a Message

Thank you for your message. I will be in touch with you shortly.

Explore Properties

Property Description

SPECTACULAR, SOPHISTICATED EARLY EDWARDIAN GRAND HOME OVERLOOKING THE GOLDEN TRIANGLE, GORGEOUS LIVE OAKS, and PASSING STREETCARS!
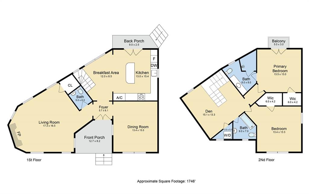
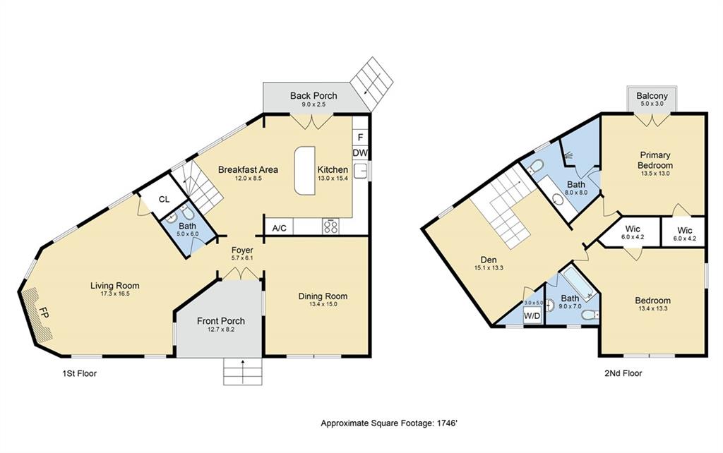
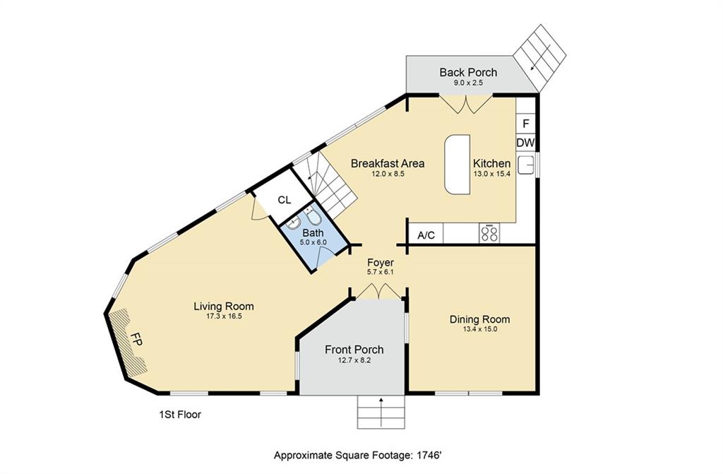
Steps from City Park, this three-bedroom, two- and a half-bath home directly on the streetcar line features a stunning true chef's kitchen, gorgeous formal and informal living spaces, gleaming inlaid hardwood floors, a burnished granite-framed functional gas start, wood-burning fireplace, off-street parking, magnificent two-story cathedral ceilings, and spacious bedrooms, overlooking a serene French Quarter style courtyard with a built-in bricked tropical water lilly pond and mature landscaping!
Fit for the most discerning of buyers, 826 North Carrollton has had all new HVAC and all new exterior / interior paint within the last year!
A thoughtful and architecturally sensitive renovation / expansion took place under the watchful eye of local master architect, which embraced the most efficient use of space to make this house feel even larger than it is!
While currently utilized as a second more formal dining room, the versatile floor plan also allows for the room to be a spacious first floor bedroom!
The second floor of the living room has been framed behind the walls to accommodate the installation of a floor, thus allowing for the easy future construction of a fourth bedroom off of the loft!
Spectacular abundant natural light throughout, spectacular original architectural details, and the highest end brand kitchen appliances available.
An easy walk to Blue Oak BBQ, Parkview Tavern, and Toups Meatery, as well as all of the shopping, restaurants, and nightlife that make MidCity so attractive!
Also easy walking distance to Bayou St. John, all the nightlife of Esplanade Ridge, and the Fairgrounds for Jazz Fest!
An exceptionally easy commute to the French Quarter, the VA Hospital, University Medical Center, and Tulane and LSU Schools of Medicine. Rarely does a house of this caliber, in this extraordinary location on the streetcar line, come available.

Overview

Property Status
Sold
MLS ID
2523785
Property Type
Residential
Year Built
1908

Features & Amenities

Total Area
2,003 Sq.Ft.
Architecture Styles
Other
Stories
2
Water Source
Public
Roof
Asphalt
Lot Features
City Lot, Irregular Lot
Parking
Off Street, One Space
Heat Type
Central
Air Conditioning
Central Air
Fireplace
Gas Starter, Wood Burning
Appliances
Double Oven, Dryer, Dishwasher, Disposal, Microwave, Oven, Range, Refrigerator, Washer
Other Interior Features
Ceiling Fan(s), Cathedral Ceiling(s), Granite Counters, High Ceilings, Stone Counters, Stainless Steel Appliances, Vaulted Ceiling(s)
Sewer
Public Sewer
Substructure
Raised
Other Exterior Features
Fence, Porch, Patio

Downloads

826 N CARROLLTON Avenue

Schedule a Tour

I would love to help you see this beautiful home! As a full-service brokerage, I can help you tour. Please submit an offer, and answer questions about the buying process.

Thank you

for your interest in 826 N CARROLLTON Avenue, New Orleans, LA 70119

826 N CARROLLTON Avenue
Navigate

I'm Interested In

826 N CARROLLTON Avenue

LATEST LISTINGS

Featured Properties

For Sale 1100 CITY PARK Avenue

1100 CITY PARK Avenue, New Orleans, LA 70119

$1,649,900

7 Beds
7 Baths
5,007 Sq.Ft.

Property description

Freshly reimagined by a renowned local architect, 1100 City Park Avenue provides a once in a lifetime opportunity to establish a legacy homestead in one of the most coveted locations in New Orleans...

Property Details
For Sale 1031 ORLEANS Avenue

1031 ORLEANS Avenue, New Orleans, LA 70116

$1,349,900

4 Beds
5 Baths
3,444 Sq.Ft.

Property description

Enjoy an enriching life at this centrally-located historic French Quarter Home! A 3 story masterpiece, it will take you in, with 4 bedrooms (currently setup as 5) and 4.5 baths! Enjoy a cocktail on...

Property Details
For Sale 1031 ORLEANS Avenue

1031 ORLEANS Avenue, New Orleans, LA 70116

$1,349,900

4 Beds
5 Baths
3,444 Sq.Ft.

Property description

Enjoy an enriching life at this centrally-located historic French Quarter Home! A 3 story masterpiece, it will take you in, with 4 bedrooms (currently setup as 5) and 4.5 baths! Enjoy a cocktail on...

Property Details
For Sale 819 PATTERSON Road

819 PATTERSON Road, New Orleans, LA 70114

$1,199,900

4 Beds
4 Baths
2,684 Sq.Ft.

Property description

Positioned directly across the street from the Mississippi River, with commanding skyline views of the CBD, French Quarter, and Marigny, 819 Patterson offers the ease of nearly brand new constructi...

Property Details
For Sale Open House: 3/22/2026, 12:00 PM - 1:00 PM 541 THAYER Street

541 THAYER Street, New Orleans, LA 70114

$649,900

3 Beds
3 Baths
2,126 Sq.Ft.

Property description

NEW construction home w/ FORTIFIED ROOF situated in a great Algiers Point location! Just 3 blocks from the MS River & paved levee bike/walking path with convenient access to the Algiers Point/Canal...

Property Details
For Sale Open House: 3/22/2026, 1:00 PM - 2:00 PM 155 ALIX Street

155 ALIX Street, New Orleans, LA 70114

$599,900

3 Beds
3 Baths
2,256 Sq.Ft.

Property description

STEPS FROM THE MISSISSIPPI RIVER, the LEVEE BIKE/JOGGING PATH, and the FERRY TO THE FRENCH QUARTER! WATCH THE PASSING SHIPS and FIREWORKS FROM YOUR FRONT PORCH! LOCATED IN THE HEART of HISTORIC and...

Property Details
For Sale Open House: 3/22/2026, 1:00 PM - 2:00 PM 516 ALIX Street

516 ALIX Street, New Orleans, LA 70114

$599,900

3 Beds
3 Baths
3,159 Sq.Ft.

Property description

LOCATION! LOCATION! LOCATION! Tremendous two-story Tudor Revival single family home, located across the street from Holy Name of Mary and half a block from Toute de Suite Cafe! NEW ROOF in 2022! SO...

Property Details
Pending 449 ABALON Court

449 ABALON Court, New Orleans, LA 70114

$549,900

3 Beds
4 Baths
2,322 Sq.Ft.

Property description

ATTENTION MILITARY BUYERS: FOUR BLOCKS FROM USMC MARFORRES / USCG SECTOR HQ / FEDERAL CITY! EASY COMMUTE to NAS BELLE CHASSE! MAGNIFICENT NEARLY-NEW Neoclassical Revival single family home backing ...

Property Details
For Sale Open House: 3/22/2026, 12:00 PM - 1:00 PM 9 MONPLASIER Place

9 MONPLASIER Place, New Orleans, LA 70114

$534,900

4 Beds
3 Baths
2,139 Sq.Ft.

Property description

EXTRAORDINARY OPPORTUNITY! FOUR BLOCKS FROM USMC MARFORRES / USCG SECTOR HQ / FEDERAL CITY! EASY COMMUTE to NAS BELLE CHASSE! GORGEOUS NEARLY-BRAND-NEW CONSTRUCTION in the DESIRABLE, GATED ALGIERS ...

Property Details
For Sale 407 ABALON Court

407 ABALON Court, New Orleans, LA 70114

$524,900

3 Beds
3 Baths
2,300 Sq.Ft.

Property description

Beautiful Neoclassical Revival home built in 2021 backing directly onto the private community park in the desirable Algiers Riverpoint gated neighborhood, immediately adjacent to the historic and c...

Property Details
Pending 313 ATLANTIC Avenue

313 ATLANTIC Avenue, New Orleans, LA 70114

$499,900

4 Beds
3 Baths
2,112 Sq.Ft.

Property description

STUNNING NEARLY NEW FULL RENOVATION in HISTORIC and CHARMING ALGIERS POINT! Four bedrooms, three baths, with a wide open floor plan for entertaining! NEW WHOLE HOUSE GENERATOR! Professional landsca...

Property Details
For Sale Open House: 3/22/2026, 2:00 PM - 3:00 PM 720 BROOKLYN Street

720 BROOKLYN Street, New Orleans, LA 70114

$499,900

3 Beds
2 Baths
1,463 Sq.Ft.

Property description

***FIRST SHOWING: OPEN HOUSE on SUNDAY, MARCH 22nd - 12:00noon to 1:00pm!!!*** EXTRAORDINARY SKYLINE VIEWS of the CBD! HUGE 160' DEEP LOT with GATED DRIVEWAY! FULL RENOVATION FROM THE STUDS UP! FOU...

Property Details

Follow Us On Instagram